Wiejska 14 | Lokal z wejściem od ulicy

Warszawa, Śródmieście Południowe, Wiejska
Dodaj do notesu Dodane

Informacje

Cena
25 000 zł
Numer oferty
34964544004 (MLS)
Typ transakcji
Wynajem
Powierzchnia
181 m2
Cena za m2
137 zł / m2
Piętro
parter/4
Typ lokalu
handel i usługi
Dostępne od
2026-03-13
Rok budowy
1946

Opis nieruchomości

WYJĄTKOWA NIERUCHOMOŚĆ KOMERCYJNA W SERCU WARSZAWY Z WITRYNAMI PRZY UL. WIEJSKIEJ 14

181 m2 | ul. Wiejska | Sąsiedztwo Placu Trzech Krzyży | Witryna od ulicy 


*****

NIERUCHOMOŚĆ:

Prezentujemy unikatową ofertę wynajmu lokalu o powierzchni 181,66 m². Nieruchomość zlokalizowana jest w kultowej kamienicy z lat 30., w najbardziej prestiżowej części Śródmieścia, tuż obok Sejmu RP i Placu Trzech Krzyży.

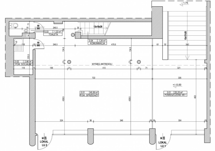
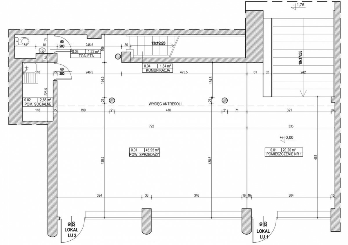
Lokal LU-1 (Parter z Witryną i Piwnica) - Powierzchnia 181,66 m²:

Lokal o unikalnym, loftowym charakterze, oferujący ogromne możliwości aranżacyjne.
Parter: Reprezentacyjne wejście i pomieszczenie o powierzchni 20,20 m².
Poziom -1 (Piwnica użytkowa): Imponująca przestrzeń o łącznej powierzchni 161,46 m². Składa się z 10 pomieszczeń, w tym dwóch dużych sal o charakterze open-space (m.in. sala o pow. 76,59 m² oraz 37,95 m²).

To idealne miejsce na galerię sztuki, prestiżowe biuro projektowe lub showroom. Aktualnie klinika kosmetyczna. 

Wnętrze lokalu niedawno przeszło gruntowny remont - zainstalowano wszelkie instalacje niezbędne do prowadzenia działalności gospodarczej - klimatyzację, wentylację, instalacją elektryczno-alarmowa, oznaczono drogi ewakuacyjne.


BUDYNEK:


Kamienica została zaprojektowana przez arch. Wacława Wekera w stylu funkcjonalizmu z lat 30-tych. Budynek przy Wiejskiej wzniesiono w latach 1935-1939. Elewacje oraz klatki schodowe w kamienicy zostały oblicowane marmurem i ciosami piaskowca, natomiast konstrukcję budynku stanowi „szkielet żelbetowo-stalowy z wypełnieniem i omurowaniem słupów stalowych z cegły pełnej” (arch. Kubicki). Posadzki w budynku ceramiczne, w przestrzeni sklepowej oraz betonowe w piwnicy.

LOKALIZACJA:

Nieruchomość znajduje się w jednej z najbardziej znanych lokalizacji Warszawy - przy ul. Wiejskiej, w sąsiedztwie Sejmu, Kancelarii Prezydenta, placu Trzech Krzyży i wielu ambasad. Na tym obszarze mieści się wiele prestiżowych butików, pracowni, kultowych kawiarni i restauracji. 
Kwartał ulic przylega do ogromnych śródmiejskich terenów zieleni, m.in. Park Ujazdowski, Łazienki Królewskie, Agrykola, Ogród Botaniczny. 

Atutem lokalizacji jest znakomita komunikacja z Centrum Warszawy. Możliwy jest zarówno dogodny dojazd komunikacją miejską i samochodem. 


Zapraszam na prezentację!

Dodatkowe informacje

  • Na wyłączność
  • Ogrzewanie

Zobacz na mapie

Zobacz na mapie

Kontakt

Ta strona jest chroniona przez reCAPTCHA i Google Polityka prywatności i Warunki korzystania z usługi.