Anin | Ogród 81 m²| 3 pokoje | 2022r

Warszawa, Wawer
Dodaj do notesu Dodane

Informacje

Cena
1 220 000 zł
Numer oferty
34964542255 (MLS)
Typ transakcji
Sprzedaż
Powierzchnia
60 m2
Cena za m2
20 255 zł / m2
Liczba pokoi
3
Piętro
parter/1
Typ budynku
Segment Skrajny
Dostępne od
2026-03-23
Miejsca parkingowe
Miejsca parkingowe naziemne
Rok budowy
2022
Liczba sypialni
2

Opis nieruchomości

Dwupoziomowe mieszkanie 60,23 m² z ogrodem 81 m² | Wawer | miejsce postojowe

Na sprzedaż funkcjonalne, dwupoziomowe mieszkanie o powierzchni 60,23 m² z ogródkiem 82 m², znajdujące się na kameralnym, zamkniętym osiedlu z 2022 roku w zielonej części Wawra.

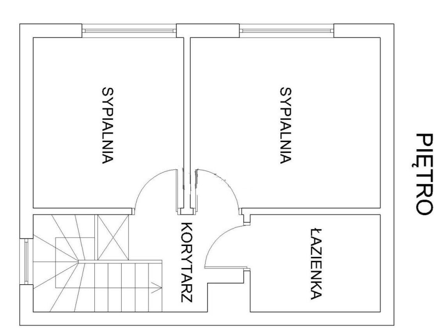
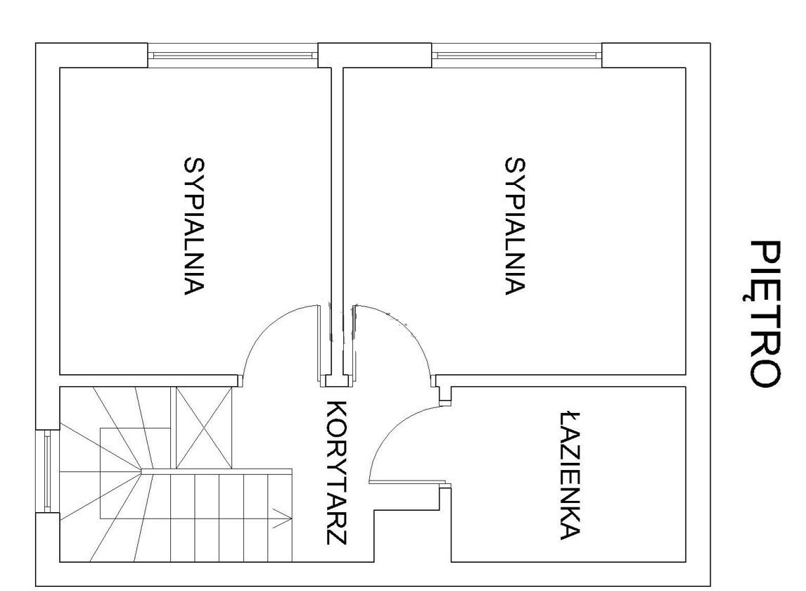
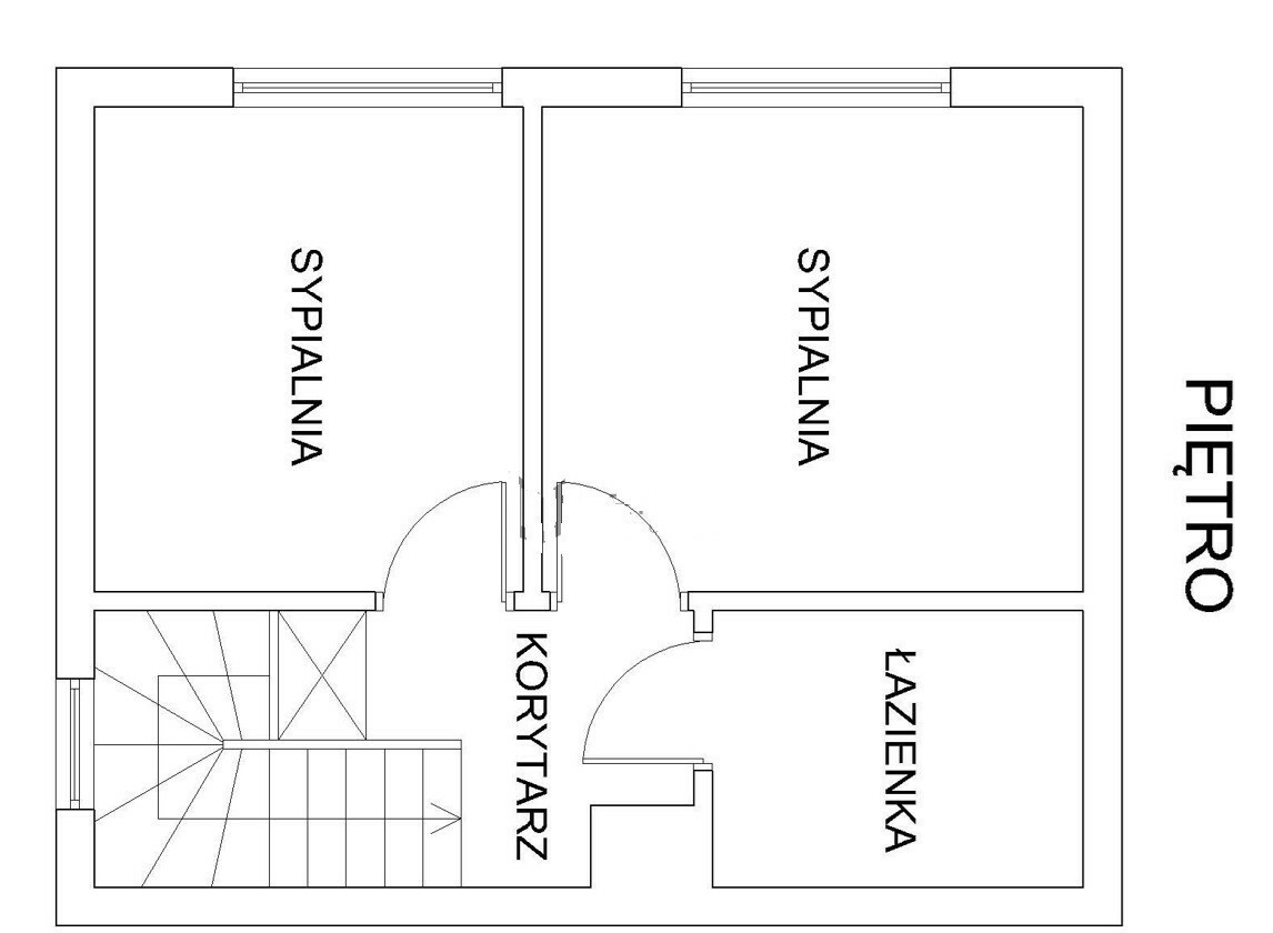
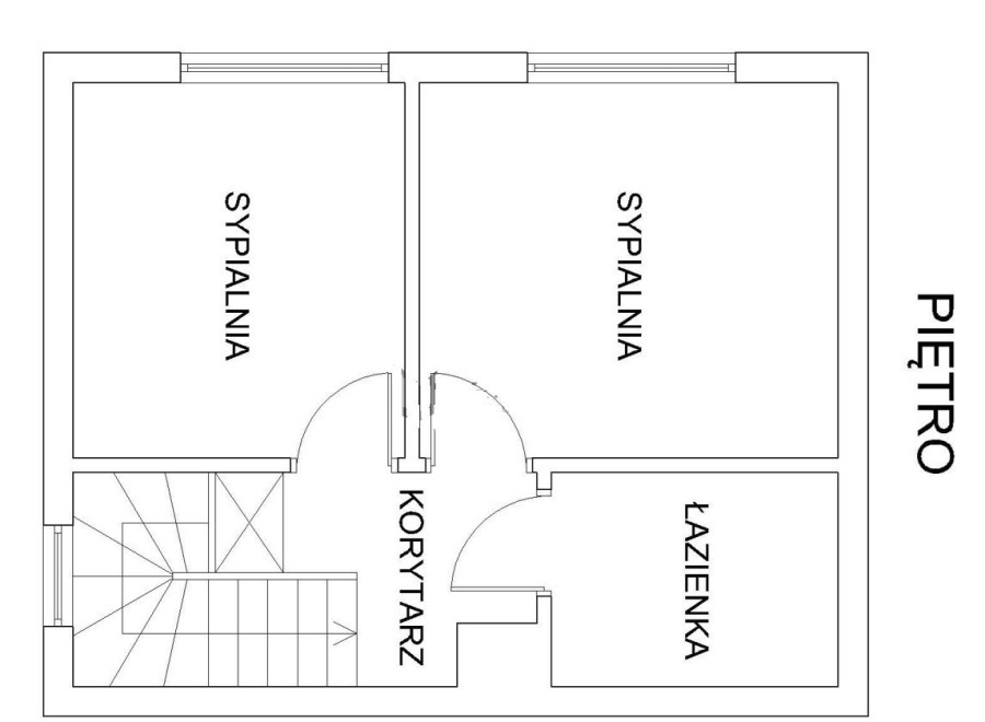
Rozkład:

Parter:
• Hall wejściowy z szafą
• salon z aneksem kuchennym - 29,85 m²
• WC
• wyjście do ogrodu

Piętro:
• pokój - 10,93 m²
• pokój - 8,57 m²
• łazienka - 3,95 m²
• korytarz - 3,38 m²


Mieszkanie jest jasne ustawne i gotowe do wprowadzenia. Funkcjonalny układ sprawdzi się zarówno dla rodziny, pary, jak i pod inwestycję.

Atuty:

✔ ogródek 82 m²
✔ miejsce postojowe naziemne przy lokalu
✔ budynek z 2022 roku
✔ osiedle zamknięte i oświetlone
✔ plac zabaw i strefa rekreacyjna
✔ brama wjazdowa automatyczna
✔ spokojna, kameralna zabudowa

Lokalizacja:

Nieruchomość położona w zielonej części Wawra, w pobliżu terenów rekreacyjnych i lasu.

• szybki dojazd do centrum - WKD Międzylesie
• wygodny wyjazd trasą S2 i mostem Południowym
• sklepy, szkoły, infrastruktura w okolicy

Idealna propozycja dla osób ceniących ciszę, naturę i komfort życia, z jednoczesnym szybkim dostępem do miasta.

 
Niniejsze ogłoszenie nie stanowi oferty w rozumieniu Kodeksu Cywilnego.

Dodatkowe informacje

  • Na wyłączność
  • Domofon
  • Ogrzewanie
  • Internet
  • Gaz
  • Taras

Zobacz na mapie

Zobacz na mapie

Kontakt

Ta strona jest chroniona przez reCAPTCHA i Google Polityka prywatności i Warunki korzystania z usługi.


Podobne oferty