Nowoczesne 2 pokoje | Balkon | Garaż | Winda |

Warszawa, Bemowo Jelonki, Drogomilska
Dodaj do notesu Dodane

Informacje

Cena
830 000 zł
Numer oferty
34964539121 (MLS)
Typ transakcji
Sprzedaż
Powierzchnia
41 m2
Cena za m2
19 975 zł / m2
Liczba pokoi
2
Piętro
4/5
Liczba wind
1
Dostępne od
2026-01-01
Miejsca parkingowe
Miejsca parkingowe podziemne
Rok budowy
2016
Liczba sypialni
1

Opis nieruchomości

Nowoczesne 2-pokojowe mieszkanie | Bemowo | Balkon | Garaż
Na sprzedaż nowoczesne, 2-pokojowe mieszkanie położone na 4. piętrze w budynku z windą na warszawskim Bemowie. Lokal jest w pełni wykończony i gotowy do zamieszkania, z możliwością zakupu z pełnym wyposażeniem - idealna propozycja zarówno do zamieszkania, jak i jako inwestycja pod wynajem.

Lokalizacja i komunikacja
Mieszkanie znajduje się w doskonale skomunikowanej części Bemowa, zapewniającej szybki i wygodny dojazd do centrum Warszawy oraz innych dzielnic.
 - Przystanek tramwajowy - ok. 350 m (5 minut pieszo)
 - Stacja metra Bemowo - ok. 1,2 km (ok. 15 minut pieszo / kilka minut komunikacją)
 - Liczne linie autobusowe w bezpośrednim sąsiedztwie
 - Szybki wyjazd na trasę S8 oraz autostradę A2
 - W pobliżu znajdują się sklepy, punkty usługowe, restauracje, placówki edukacyjne oraz tereny rekreacyjne, co zapewnia wysoki komfort codziennego życia.

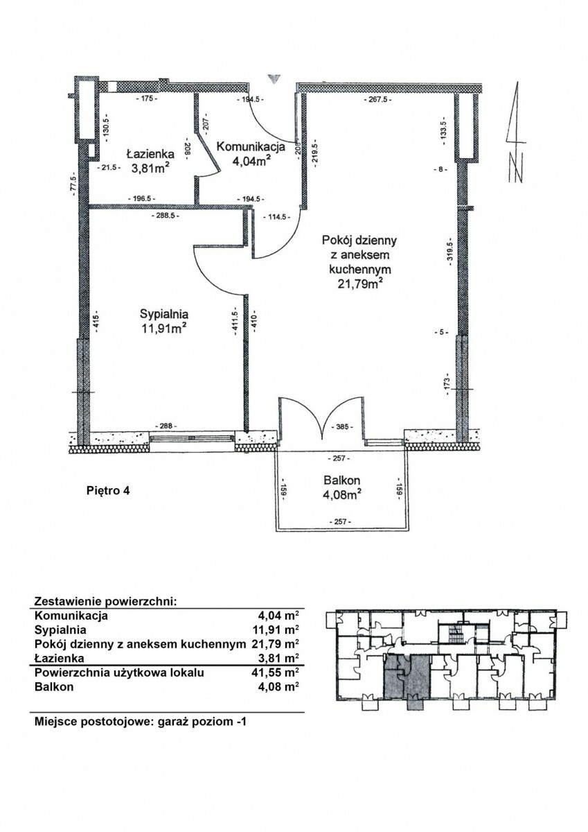
Układ mieszkania
 - Salon z aneksem kuchennym - 21,79 m²
 - Sypialnia - 11,91 m²
 - Łazienka - 3,81 m²
 - Przedpokój - 4,04 m²
 - Balkon - 4,08 m²

Dodatkowe atuty
 - Kameralny budynek z 2016 roku
 - Winda
 - Duży balkon
 - Budynek monitorowany
 - Szerokie miejsce postojowe w garażu podziemnym
 - Możliwość zakupu z pełnym wyposażeniem - idealne na start lub pod wynajem
 - Gotowe do zamieszkania od zaraz

Informacje dodatkowe
 - Stan prawny: pełna własność
 - Czynsz administracyjny: ok. 500 zł
 - Miejsce postojowe w garażu podziemnym: 50 000 zł (zakup obligatoryjny)

Dodatkowe informacje

  • Na wyłączność
  • Balkon
  • Winda

Zobacz na mapie

Zobacz na mapie

Kontakt

Ta strona jest chroniona przez reCAPTCHA i Google Polityka prywatności i Warunki korzystania z usługi.


Podobne oferty