Działka 625 m2 na Zaciszu

Warszawa, Targówek Zacisze
Dodaj do notesu Dodane

Informacje

Cena
1 530 000 zł
Numer oferty
34964505101 (MLS)
Typ transakcji
Sprzedaż
Powierzchnia
625 m2
Cena za m2
2 448 zł / m2
Droga dojazdowa
Asfaltowa
Ogrodzenie
Brak
Długość działki
26
Szerokość działki
26
Typ działki
Budowlana

Opis nieruchomości

Nowa Cena

!!!!!!!!!!!!!!!!!! Brak Prowizji ze strony Kupujących !!!!!!!!!!

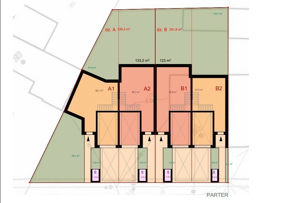
Analiza chłonności - możliwość wybudowania:
- 4 mieszkań o powierzchni użytkowej  476,72m2 
lub
- 4 mieszkań -o powierzchni użytkowej 512,6m2
lub
- 4 domów,
lub
- 3 domów 
 
Zapraszamy do zapoznania się z ofertą sprzedaży działki na warszawskim Zaciszu

działka zlokalizowana w spokojnej okolicy, blisko lasku Bródnowskiego i ul. Bystrej

Wymiary działki
Szerokość: 26,5m od ulicy  i zwęża się do 18m
Głębokość: około 26,5m


okolica :
- 1 km do stacji metra Zacisze
- 200 m do przystanku autobusowego
- 230m do placu zabaw
- 250m do lasu bródnowskiego
 
Obecnie na  działce znajduje się parterowy budynek o powierzchni  100 m2
 Dom składa się z 3 dużych pokoi, oddzielnej kuchnia , oraz łazienki.
Obecnie nieruchomość zamieszkała przez najemców

 
Plan zagospodarowania dla działki
Dla jednostek terenowych oznaczonych na rysunku planu symbolami MNK 9÷MNK 14:
1. Ustala się przeznaczenie podstawowe jednostek terenowych - zabudowa mieszkaniowa jednorodzinna z dopuszczeniem budynków wielorodzinnych zawierających 3÷4 lokale mieszkalne -mogą być realizowane zarówno budynki jednorodzinne, tj. zawierające 1 - 2 lokale mieszkalne lub 1 lokal mieszkalny i 1 lokal usługowy o powierzchni nie przekraczającej 30% powierzchni całkowitej budynku, jak i budynki zawierające maksymalnie 4 lokale mieszkalne i lokale usługowe o łącznej powierzchni nie przekraczającej 20% powierzchni całkowitej budynku (przy czym możliwe jest sytuowanie tych budynków jako wolnostojących i bliźniaczych), wraz z ich zapleczami (obejmującymi dojścia, podjazdy, podwórza, garaże i budynki gospodarcze), ogrodami przydomowymi i zewnętrznymi urządzeniami infrastruktury technicznej, a także odrębne budynki dla usług towarzyszących.
2. Ustala się, że przeznaczeniem dopuszczalnym jednostek terenowych mogą być usługi - bez przesądzania ich profilu - w zakresie, o jakim mowa w § 2 pkt 9.
3. Ustala się, że przeznaczenie dopuszczalne może funkcjonować w pomieszczeniach wbudowanych w budynki mieszkalne.
4. Obowiązujące zasady zagospodarowania i kształtowania zabudowy:
1) w zakresie zasad podziału terenów i tworzenia nowych działek:
a) ustala się minimalną wielkość nowo tworzonej działki pod zabudowę:
- dla segmentu w zabudowie bliźniaczej- 450 m2
- dla jednego budynku wolnostojącego- 600 m2
b) obowiązują także przepisy dotyczące zasad tworzenia nowych działek zawarte w § 11;
2) zasady kształtowania zabudowy mieszkaniowej:
a) ustala się maksymalną wysokość zabudowy na 12 m, a w przypadku dachów płaskich- 10,5 m,
b) w sytuacji, gdy budynek usytuowany jest szczytem do ulicy, zakazuje się realizacji szczytu bez otworów okiennych lub drzwiowych,
c) wyznacza się na rysunku planu linie zabudowy nieprzekraczalne oraz obowiązującą: dla jednostki MNK 11 - od ul. Kolejarskiej;
3) dopuszcza się realizację odrębnych budynków gospodarczych i garażowych, przy czym ustala się maksymalną łączną powierzchnię zabudowy budynków gospodarczych (w tym garaży) - 50 m2 oraz obowiązek realizacji w głębi działki;
4) warunki usytuowania budynku w granicy działki określają przepisy zawarte w § 9;
5) w zakresie wyznaczania miejsc parkingowych obowiązują ustalenia zawarte w § 12;
6) ustala się maksymalny wskaźnik powierzchni zabudowanej dla działek:
- o powierzchni 600 - 800 m2- 35%,
7) ustala się minimalny procentowy wskaźnik powierzchni biologicznie czynnej dla działek nowo
zabudowywanych:
- o powierzchni 600 - 800 m2- 50%,

 
Zapraszamy do zapoznania się z ofertą

Dodatkowe informacje

  • Na wyłączność
  • Gaz
  • Kanalizacja
  • Prad
  • Woda

Zobacz na mapie

Zobacz na mapie

Kontakt

Ta strona jest chroniona przez reCAPTCHA i Google Polityka prywatności i Warunki korzystania z usługi.


Podobne oferty