Biuro 20m2 z balkonem 15m2 i garażem

Warszawa, Wola, Marcina Kasprzaka
Dodaj do notesu Dodane

Informacje

Cena
2 950 zł
Numer oferty
34964545830 (MLS)
Typ transakcji
Wynajem
Powierzchnia
20 m2
Cena za m2
144 zł / m2
Piętro
6/10
Typ lokalu
biura
Dostępne od
2026-03-18
Rok budowy
2023
Miejsca parkingowe
Miejsca parkingowe podziemne

Opis nieruchomości

Jeżeli szukasz biura w sercu Warszawy, mamy dla Ciebie doskonałą propozycję!
Biuro o powierzchni 20 m², położone w dogodnej lokalizacji na warszawskiej Woli przy ulicy Kasprzaka 29, w odległości około 4,5 km od Centrum Warszawy. 
Lokal idealnie nadaje się na biuro dla małych firm, gabinet psychologiczny, miejsce do spotkań z klientami. To miejsce będzie idealne dla wszystkich którzy poszukują profesjonalnego miejsca pracy w prestiżowej lokalizacji.

Lokalizacja:
Dzielnica Wola posiada wiele atutów, które przyciągają tutaj wiele osób zrówno mieszkańców jak rownież firmy.
- centralne położenie: mieszkańcy mają łatwy dostęp do biznesowych, handlowych miejsc w centrum miasta, zaledwie 15 min komunikacją od Lotniska
- rozwinięta infrastruktura, dzielnica Wola jest dobrze skomunikowana transportem publicznym, 
- dynamiczny rozwój: w ostatnich latach Wola stała się jednym z najszybciej rozwijających się obszarów Warszawy. Powstają tu nowe biurowce, centra handlowe i osiedla mieszkaniowe, które przyciągają inwestorów i tworzy nowe miejsca pracy.


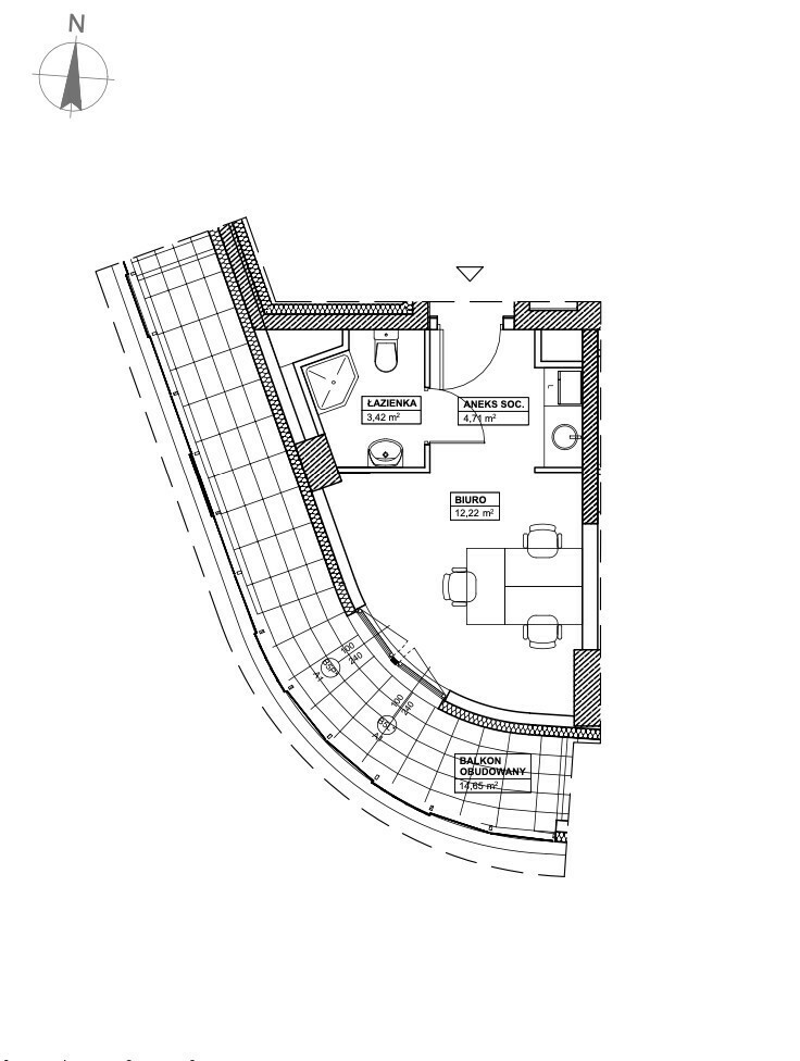
Rozkład pomieszczeń:
- Open space 12,22 m2 
- Aneks kuchenny 4,71 m2 (lodówka)
- Łazienka 3,42 m2 (pralka)
- Balkon 14,65 m2


Główne atuty biura:
- W pełni wyposażone i gotowe do natychmiastowego użytku
- Jasne pomieszczenie
- Możliwość dostosowania aranżacji do potrzeb Najemcy
- Miejsce parkingowe w garażu podziemnym

Pozostałe informacje:
Umowa najmu instytucjonalnego.
Całkowity koszt najmu to 2.950 zł + VAT + czynsz administracyjny 463,40 zł + zużycie mediów ponad zaliczki oraz koszty energii. 
Kaucja w wysokości 3.000 zł. 
Miejsce garażowe dodatkowo płatne 300 zł + VAT

Serdecznie polecam tę ofertę i zapraszam na prezentację!

Treść niniejszego ogłoszenia nie stanowi oferty handlowej w rozumieniu Kodeksu Cywilnego.

Dodatkowe informacje

  • Na wyłączność
  • Ogrzewanie
  • Meble

Zobacz na mapie

Zobacz na mapie

Kontakt

Ta strona jest chroniona przez reCAPTCHA i Google Polityka prywatności i Warunki korzystania z usługi.