36,5 m² | 2 niezależne studia | gotowe pod wynajem

Warszawa, Bielany Wrzeciono, Szegedyńska
Dodaj do notesu Dodane

Informacje

Cena
579 000 zł
Numer oferty
34964538993 (MLS)
Typ transakcji
Sprzedaż
Powierzchnia
36 m2
Cena za m2
15 863 zł / m2
Liczba pokoi
2
Piętro
8/9
Typ budynku
Blok Mieszkalny
Liczba wind
1
Dostępne od
2026-01-01
Materiał budowlany
wielka płyta
Rok budowy
1968

Opis nieruchomości

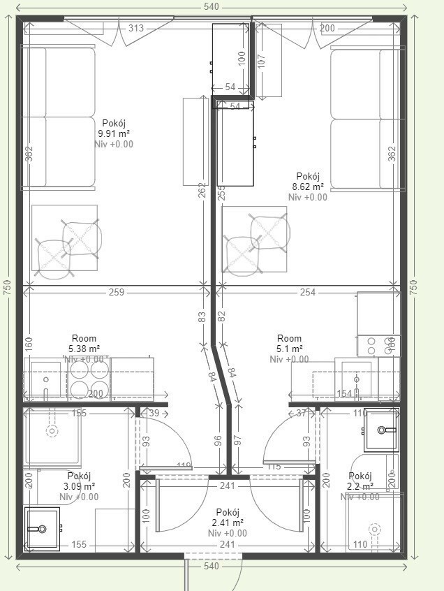
Mieszkanie o powierzchni 36,5 m² zostało funkcjonalnie i przemyślanie podzielone na dwa niezależne studia. Każde studio posiada własną kuchnię oraz łazienkę, co znacząco zwiększa atrakcyjność lokalu w oczach najemców i zapewnia większą prywatność.
Lokal jest świeżo po remoncie, w pełni umeblowany i wyposażony, dzięki czemu jest gotowy do zamieszkania lub wynajęcia od razu po zakupie

Najważniejsze atuty nieruchomości:


Dwa niezależne studia w jednym lokalu
Świeżo po remoncie - brak dodatkowych nakładów finansowych
W pełni umeblowane i wyposażone
Budynek z windą
Okna wychodzące na wschód - mieszkanie jasne i ciche
Instalacja elektryczna miedziana
Pełna własność z księgą wieczystą

Lokalizacja:
Bielany to zielona i doskonale skomunikowana dzielnica Warszawy, zapewniająca szybki dostęp zarówno do centrum miasta, jak i terenów rekreacyjnych.
W najbliższym otoczeniu znajdują się:
• Sklepy i punkty usługowe
• Komunikacja autobusowa i tramwajowa
• Las Bielański
• Galeria Młociny
To miejsce, które cieszy się dużym zainteresowaniem najemców, zarówno studentów, jak i osób pracujących.

Dla kogo?
Idealne dla singla
Świetna opcja dla studenta
Doskonała propozycja inwestycyjna z pewnym potencjałem najmu

Zapraszam na prezentację!

Dodatkowe informacje

  • Na wyłączność
  • Ogrzewanie
  • Telefon
  • Internet
  • Winda

Zobacz na mapie

Zobacz na mapie

Kontakt

Ta strona jest chroniona przez reCAPTCHA i Google Polityka prywatności i Warunki korzystania z usługi.


Podobne oferty