3 pokoje po remoncie z tarasem Parter Targówek

Warszawa, Targówek, Płońska
Dodaj do notesu Dodane

Informacje

Cena
875 000 zł
Numer oferty
34964536079 (MLS)
Typ transakcji
Sprzedaż
Powierzchnia
73 m2
Cena za m2
11 983 zł / m2
Liczba pokoi
3
Piętro
1/3
Liczba wind
0
Liczba poziomów
0
Materiał budowlany
cegła
Rok budowy
1982

Opis nieruchomości

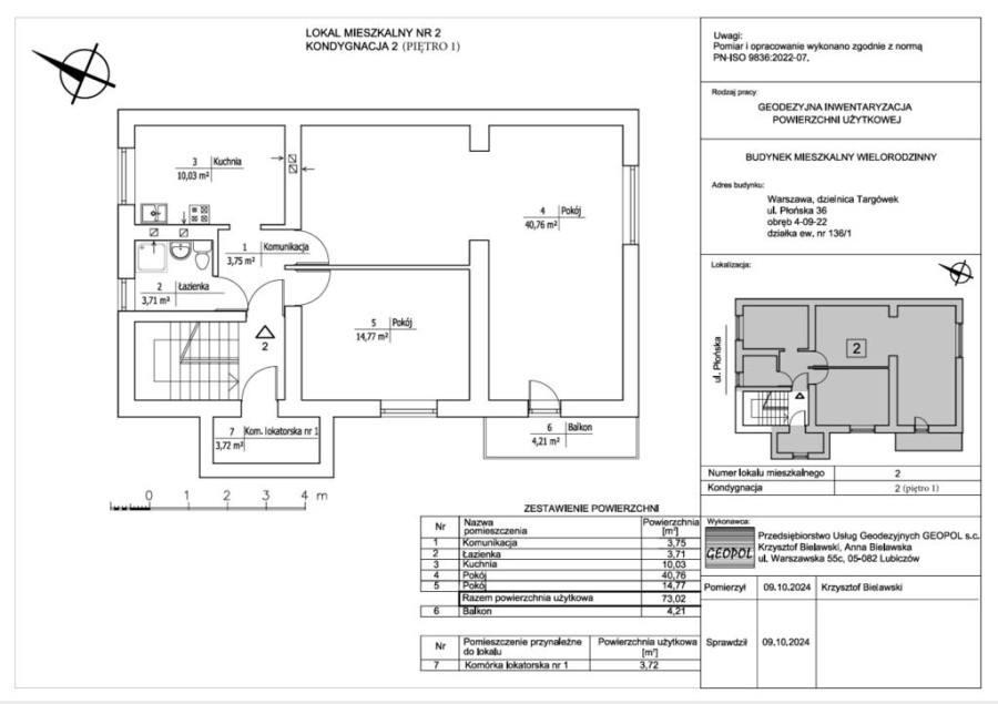
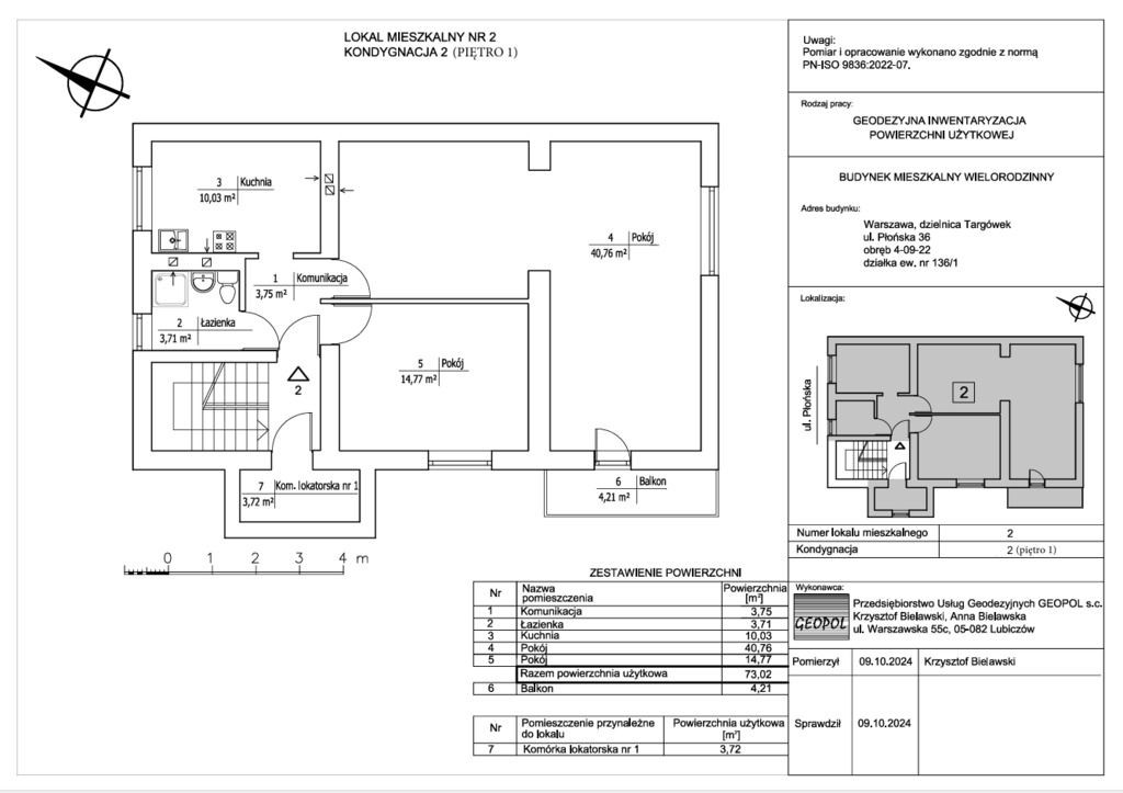
Na sprzedaż jasne, świeżo wyremontowane 3-pokojowe mieszkanie o powierzchni 73,02 mkw, położone na pierwszym piętrze kameralnego, odnowionego budynku przy ul. Płońskiej na warszawskim Targówku.
W budynku znajdują się tylko cztery mieszkania, zero blokowiska, pełna prywatność i spokój.

Najważniejsze atuty Generalny remont wykonany od A do Z, wchodzisz i mieszkasz.
Wymieniona hydraulika, nowa elektryka, zamontowane wideofony, liczniki, instalacje, absolutny porządek techniczny.
Kameralny budynek po modernizacji: nowa elewacja, ocieplenie, odświeżone części wspólne.
Świetne doświetlenie, duże okna, ekspozycja południowo-wschodnia. Słońce od rana do popołudnia w salonie, a po południu w kuchni i łazience.
Duży balkon, idealny na kawę o świcie lub wieczorne przewietrzenie głowy.
Umeblowane, pełne wyposażenie kuchni wraz ze sprzętem AGD.
Łazienka w nowoczesnym stylu, wyposażona w wygodny prysznic.

Układ i standard 3 jasne pokoje – świetne dla rodziny, pary lub pod wynajem.
Oddzielna kuchnia z oknem – funkcjonalna, jasna, w pełnej zabudowie.
Drzwi antywłamaniowe i wideofon.
Wszystkie ściany proste, świeżo wykończone.
Budynek z 1982 r., ale po generalnym remoncie.

Lokalizacja
Targówek, ul. Płońska — idealny balans pomiędzy spokojem a świetnym dojazdem.
W najbliższej okolicy:
szkoła podstawowa 2 minuty pieszo,
przedszkole na tej samej ulicy,
sklepy, Biedronka, punkty usługowe, galeria Łodygowa,
pieszo do PKP oraz do metra – szybki dojazd do centrum,
Centrum Handlowe M1 ,7 minut autem,Las Bródnowski (1,5 km) – bieganie, spacer, rower i totalny reset od miasta.

Dla kogo? Dla osób, które chcą:
mieszkać wygodnie w jasnym i funkcjonalnym wnętrzu,
mieć komfort pracy z domu,
szukać gotowego rozwiązania inwestycyjnego,
mieć ciszę, zieleń i jednocześnie szybki dostęp do Centrum.
Dodatki Miejsce postojowe naziemne: 30 000 zł
Komórka lokatorska 6 mkw: w pomieszczeniu gospodarczym 30 000 złDodatkowe pomieszczenie gospodarcze na tym samym piętrze: 20 000 zł
Po więcej informacji zapraszam do kontaktu i na prezentację.

>>>Niniejsza oferta, nie stanowi oferty w art. 66 kodeksu cywilnego<<<

Dodatkowe informacje

  • Na wyłączność
  • Domofon

Zobacz na mapie

Zobacz na mapie

Kontakt

Ta strona jest chroniona przez reCAPTCHA i Google Polityka prywatności i Warunki korzystania z usługi.


Podobne oferty